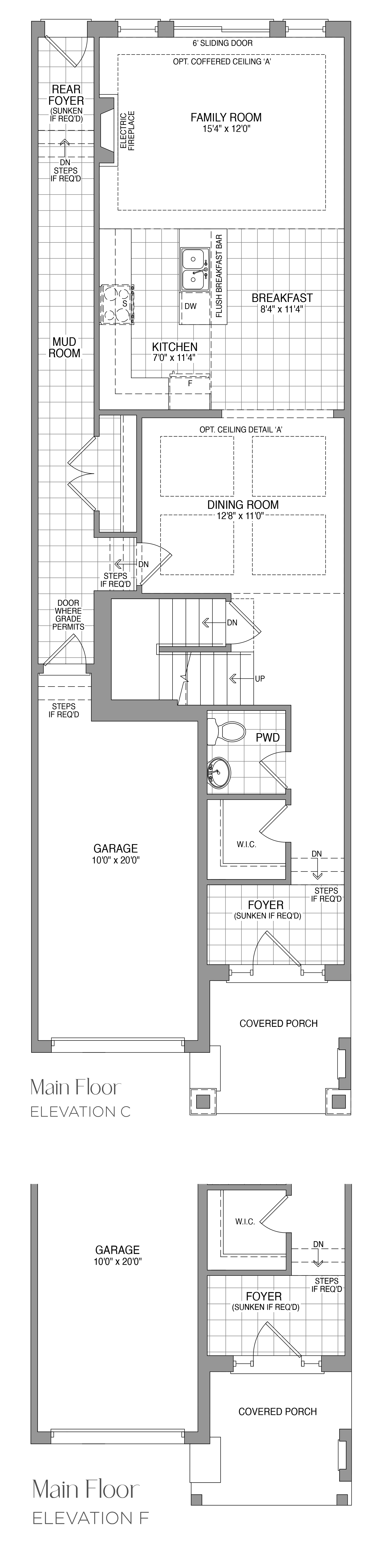
Elevation C | 2,251 sq. ft. Bedrooms : 3/4 Bathrooms : 2.5
Elevation F | 2,251 sq. ft. Bedrooms : 3/4 Bathrooms : 2.5
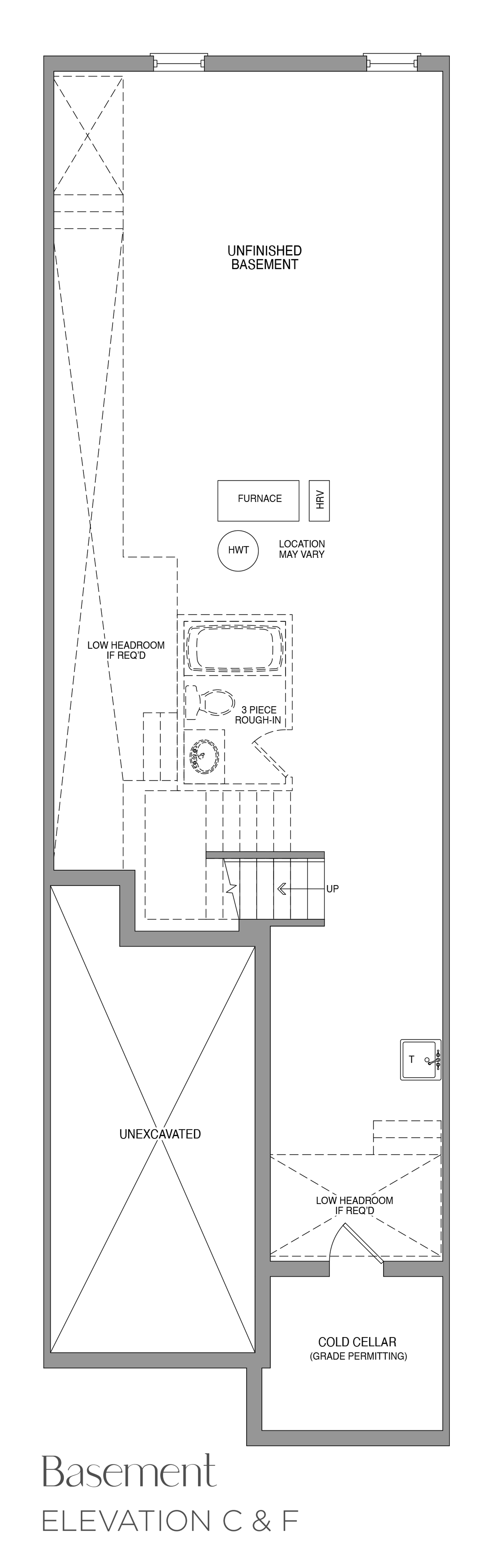
Main Floor | Upper Floor | Basement