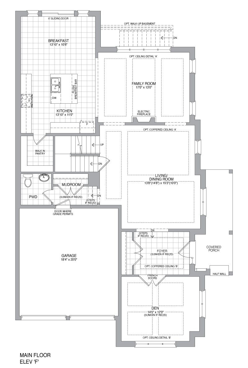
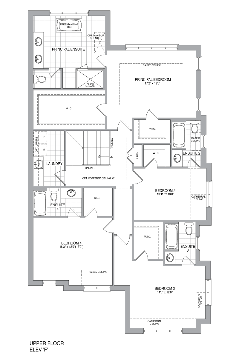
Elevation F | 3,380 sq. ft. Bedrooms : 4/5 Bathrooms : 4.5/5 Garage : Double
Main Floor | Opt Main Floor 5th Bed | Upper Floor | Basement